

La demande de permis de construire
Elle est obligatoire dans le cas de projet de construction d'un bâtiment tel que maison individuelle, annexes, hangar agricole ou industriel, pool-house, et pour certains travaux portant sur une construction existante.
Si votre projet se situe dans une zone non desservie par le réseau d'égout, un dossier d'assainissement non collectif devra également être déposé.
Constitution d'un dossier type :
PCMI 1: plan de situation du projet
PCMI 2: plan de masse du projet
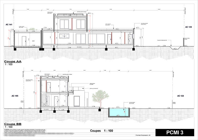
PCMI 3: plan en coupe de la construction sur l'ensemble du terrain
PCMI 4: notice descriptive du projet et de son environnement
PCMI 5: plan en élévation des façades et toitures
PCMI 6: insertion graphique du projet
PCMI 7: photo de l'environnement proche
PCMI 8: photo de l'environnement lointain
PCMI 9: certificat de surface constructible attribuée à la parcelle (pour un lot issu d'un lotissement)
PCMI 10: attestation de l'achèvement des équipements (pour un lotissement)
PCMI 13: attestation parasismique (si demandée par l'administration; à faire établir par un bureau d'étude ou constructeur)
PCMI 14-1: attestation de la prise en compte de la RE 2020 (réalisée par un thermicien)
Formulaire de demande de permis de construire
Bordereau de dépôt
Récépissé de dépôt
D'autres pièces peuvent être demandées suivant le type et la localisation du projet.
Dans le cadre d'une démolition, la demande de permis de démolir est maintenant intégrée dans la
demande de PC.










Conception de vos Plans & Dossier Technique.
L'expertise d'un dessinateur, la précision d'un dossier prêt à bâtir.
Bien que les plans intérieurs ne soient plus exigés par l'administration, ils restent le cœur de ma prestation.
Ils sont indispensables pour obtenir des devis précis auprès de vos artisans (tous corps d'état) et garantissent
la cohérence de votre chantier.
Maîtrise totale des calculs réglementaires.
Je prends en charge l'ensemble des calculs indispensables à la validation de votre projet :
-
Surfaces : Plancher, habitable, annexes, emprise au sol.
-
Urbanisme : Vérification du CES (Coefficient d’Occupation des Sols), surfaces imperméabilisées et respect du PLU local.
-
Thermique : Calcul du ratio des ouvertures imposé par la réglementation.
Optimisation & Aménagement.
Chaque plan est conçu pour maximiser le potentiel de votre terrain :
-
Orientation bioclimatique : Optimisation de l'ensoleillement pour le confort et les économies d'énergie.
-
Agencement sur mesure : Volumes intérieurs pensés selon vos besoins, tout en tenant compte des vis-à-vis et des prescriptions architecturales locales.
Votre Dossier "Clé en Main".
Zéro stress administratif, un dossier complet prêt pour la mairie.
Étude thermique RE 2020 : La sérénité d'un interlocuteur unique
Pour simplifier vos démarches, je coordonne gratuitement l'élaboration de votre étude RE 2020 avec mon thermicien partenaire agréé local.
-
Zéro frais de gestion : Aucun supplément de tarif n’est appliqué pour cette coordination.
-
Expertise & Conformité : Vous bénéficiez d’un dossier 100% conforme et de conseils d’experts pour le choix de vos matériaux, sans multiplier les intermédiaires.
-
Accès direct au spécialiste : Bien que je centralise votre dossier, le thermicien reste à votre entière disposition pour échanger sur les aspects techniques ou les points spécifiques de votre construction.
Ce que vous recevez :
-
Formats numériques : Livraison en PDF et DWG sur demande (pour vos entreprises) du format A4 au A0.
-
Dépôt dématérialisé : Je m'occupe de la télé-procédure de dépôt en mairie pour vous (si disponible dans votre commune).
Mon engagement : Un dossier prêt à signer, un suivi rigoureux jusqu'à l'obtention de votre permis, et une interface directe avec les services d'urbanisme si nécessaire.
Tarifs dossier de demande de permis de construire :
Maison individuelle à partir de 9.00 € TTC* par m2 de surface habitable réalisé, avec un forfait minimum à 600 € TTC*.
Extension, hangar, villa >130m2 habitable : sur devis
Modificatif de permis de construire: sur devis
Relevé de l'existant : sur devis
Le tarif de la prestation dépend de la surface habitable et annexes à réaliser, du nombre de niveaux, de la complexité ou de la forme du projet, du dénivelé du terrain, éventuellement des constructions existantes.
* TVA non applicable.
Etude de sol +
dossier assainissement (si demandé par l'administration); à partir de 525 € HT soit 630 € TTC (suivant localisation)
PCMI 13 Attestation parasismique au dépôt et à l'achèvement des travaux (si demandé par l'administration); non compris.
A faire réaliser par un bureau d'étude assermenté ou par le constructeur par dérogation (pour la maison individuelle).
Nature des travaux nécessitant une demande de permis de construire :
Liste des principaux travaux nécessitant une demande de permis de construire;
- création d'une surface plancher ou d'une emprise au sol supérieure à 20 m²,
- création d'une surface plancher ou d'une emprise au sol supérieure à 20 m² sur une construction existante,
- changement de destination modifiant l'aspect de la construction existante,
- piscine dont sa couverture dépasse 1.80m de hauteur,
- piscine d'une surface supérieure à 100 m²,
- éolienne d'une hauteur supérieure à 12m,
- démolition rendant inutilisable tout ou partie d'une construction.
Quelques réalisations :




